| HOME > 売買 福岡 > 物件を探す(福岡市エリア) > 402 |
|
|
|||||||||||||||||||||||||||||||||||||||||||||||||||||||||||||||||||||||||||||||||||||||
| ツイート |
| 物件詳細 |
| 物件名 | 号室 | 402 | |||||||||||||
| 所在地 | 812-0026 福岡県 福岡市博多区上川端町11 − 1 | ||||||||||||||
| 交通 |
福岡地下鉄 空港線 中洲川端駅 徒歩 1分 |
||||||||||||||
| 面積 | 土地面積:-- 専有面積:66.69m2 バルコニー面積:2.72m2 | ||||||||||||||
| 現況/引渡 | 賃貸中 / 相談 | 成約 | 未成約 | ||||||||||||
| コメント | 中洲川端駅から徒歩1分のリフォーム済みマンションがでました! | ||||||||||||||
| 詳細欄 | 生活利便性が高く、通勤・通学・お出かけにとても便利なロケーションです。 駅近でありながら落ち着いた住環境で、幅広い世代におすすめです。 |
||||||||||||||
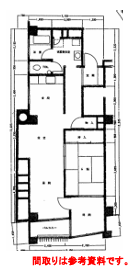
| 間取り |
|
||||||||||||||
| 建ぺい率/容積率 | --/-- | 総戸数 | 31戸 | ||||||||||||
| 構造 | SRC(鉄骨鉄筋コンクリート造) 地上8階/地下1階 | 所在階 | 4階 | ||||||||||||
| 建築年 | 1972年 10月 | 更新日 | 2025-12-26 | ||||||||||||
| 費用 |
|
||||||||||||||
| 消費税有無/金額 | 有り /-- | 駐車場/料金(備考) | 無し | ||||||||||||
設備・その他条件
| 電気ガス水 | |||
| 設備情報 |
|
||
| オススメ情報 |
|
||
周辺環境・条件
| 最寄小学校 | 福岡市立博多小学校 | 最寄中学 | -- |
| 接道状況 | |||
| 権利形態 | 所有権 | 私道負担 | 無し |
| 国土法届出要否 | 不要 | 区域区分 | -- |
| 防火指定 | -- | 高度地区 | -- |
| 地目 | 地勢 | ||
| 用途地域 | 都市計画 | ||
| 市街化区域 | 借地権の種類 | ||
| 他の法令上の制限 | 検査済証 | ||
| 建物備考欄 | |||
収益物件情報
| 区分内訳 |
|
||||||||||||||||||||||||||||||||||||||||||||||
| 収入 |
|
支出 |
|
||||||||||||||||||||||||||||||||||||||||||||
| 備考欄 | |||||||||||||||||||||||||||||||||||||||||||||||

